REQUEST A TOUR If you would like to see this home without being there in person, select the "Virtual Tour" option and your agent will contact you to discuss available opportunities.
In-PersonVirtual Tour

Listing Courtesy of Douglas Elliman Real Estate
$11,500
7 Beds
6 Baths
UPDATED:
Key Details
Property Type Multi-Family
Sub Type Duplex
Listing Status Pending
Purchase Type For Rent
Subdivision Williamsburg
MLS Listing ID RLS20044650
Style Walk-Up
Bedrooms 7
HOA Y/N Yes
Year Built 1931
Property Sub-Type Duplex
Property Description
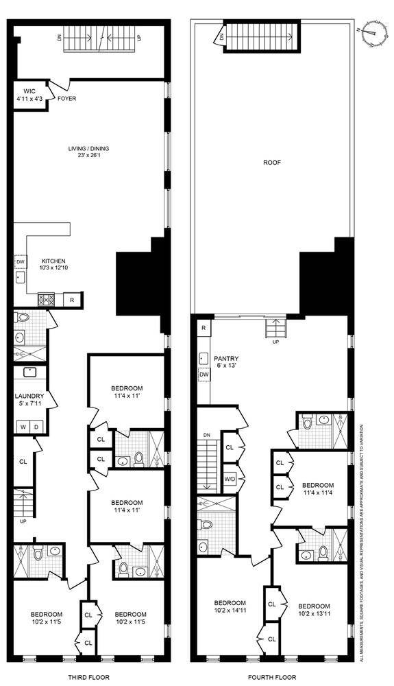
Brand New, Redesigned Duplex with Two Living Spaces and Private Rooftop Deck - Over 3,000 Square Feet of Living Space! Introducing 98 Graham Avenue: Residence Three is an oversized seven-bedroom, six-bathroom home with two expansive living spaces and a private rooftop deck. This residence has been beautifully redesigned from top to bottom and is ready for immediate occupancy. Upon entering the gracious foyer, you'll appreciate wide-plank white oak hardwood flooring that extends throughout the apartment. Oversized windows bathe the interiors in natural light - even on the cloudiest days. The kitchen features a full suite of stainless-steel appliances, sleek modern custom cabinetry, and pristine Caesarstone countertops with a waterfall edge, all accented by brushed brass hardware for a contemporary touch. All bedrooms can accommodate queen- or king-size beds with additional furniture, and each offers ample closet space. All bathrooms are appointed with custom tilework, wood vanities with ample storage, walk-in showers, and coordinating brushed brass fixtures. Each room is individually climate-controlled via a split-unit system for year-round comfort. Additionally, the home features a dedicated laundry room with a full-size washer and dryer on the main floor, as well as an additional full-size washer and dryer on the second floor of this stunning duplex. 98 Graham Avenue is professionally managed and offers the support of a full-time superintendent. Enjoy excellent access to transportation, including the L, G, J, and M trains, as well as multiple Citi Bike stations nearby. Manhattan can be reached in under 15 minutes! Just beyond your doorstep, discover an array of neighborhood favorites, from cozy cafés and eclectic shops to amazing restaurants serving a variety of cuisines. Utilities included: Hot water Tenant responsibilities: Electricity, cable/internet Additional details: $20 application fee per applicant. First month's rent and one month's security deposit due at lease signing. Market rent is $11,500. 1 month free on a 12 month lease. Net effiective rent is $10,542.
Location
Rooms
Basement Other
Interior
Furnishings Unfurnished
Fireplace No
Laundry Building Other, Washer Hookup, In Unit
Exterior
Exterior Feature Private Outdoor Space Over 60 Sqft
View Y/N Yes
View City, Park/Greenbelt
Porch None
Private Pool No
Building
Story 1
Entry Level Two
Level or Stories Two
New Construction No
Others
Pets Allowed Pets Allowed
Tax ID 03089-0001
Ownership Rental Building
Special Listing Condition Standard
Pets Allowed Building Yes, Yes
Read Less Info

RLS Data display by Anthony T Crews Real Estate Llc
Get More Information

Quick Search




