REQUEST A TOUR If you would like to see this home without being there in person, select the "Virtual Tour" option and your agent will contact you to discuss available opportunities.
In-PersonVirtual Tour

$1,700
6,141 Sqft Lot
UPDATED:
Key Details
Property Type Commercial
Sub Type Retail
Listing Status Active
Purchase Type For Rent
MLS Listing ID 928831
Rental Info No
Year Built 1940
Annual Tax Amount $18,487
Lot Size 6,141 Sqft
Acres 0.141
Property Sub-Type Retail
Source onekey2
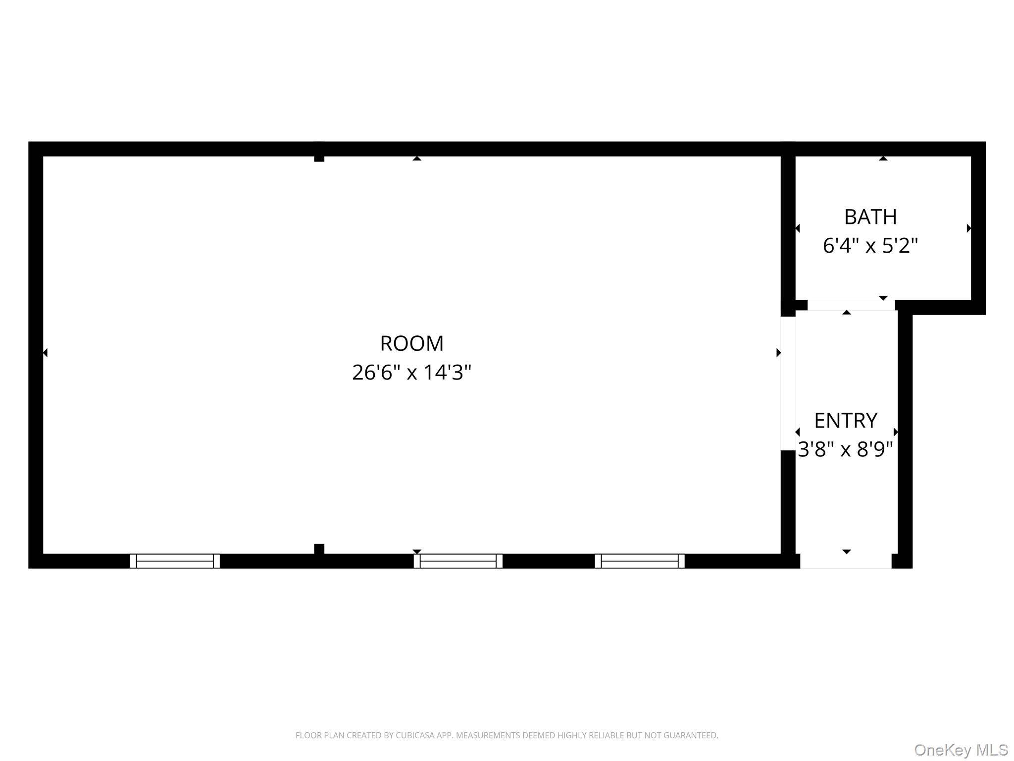
Property Description
Newly renovated building with a newly renovated space in the center of the Village of Goshen. Unit 103 is a prime space in the front of this highly trafficked building. The space features a private entrance, bathroom, and large open floor plan with large street-facing windows that would work for a multitude of businesses. This space is fully renovated with all new windows, insulation, flooring, walls and paint. CS zoning allows for retail, office, personal service, food, and more. AADT of over 10k.
Location
State NY
County Orange County
Interior
Heating Baseboard
Cooling None
Fireplace No
Exterior
Parking Features On Street
Utilities Available Electricity Connected, Sewer Connected, Trash Collection Public, Water Connected
Building
Sewer Public Sewer
Water Public
Structure Type Frame
Others
Special Listing Condition Renewal Option
Read Less Info
Listed by Rand Commercial • Hilary R. Goldman
Get More Information

Quick Search




